Ερωτήσεις/ Απαντήσεις - Διακόσμηση, Αρχιτεκτονική, Design, Ανακαίνιση

ΕΡΩΤΗΣΕΙΣ - ΣΥΜΒΟΥΛΕΣ

Ερώτηση αναγνώστη: "Τα πλακάκια του μπάνιου μου είναι ολισθηρά. Σκέφτομαι να τοποθετήσω από πάνω linoleum. Δε θέλω να ξηλώσω τα πλακάκια αλλά ούτε και να βάλω από πάνω άλλα πλακάκια. Επίσης θέλω να τοποθετήσω linoleum στο δάπεδο του μπαλκονιού. Είναι καλή επιλογή το linoleum;" Η απάντησή μας: Το δάπεδο linoleum στο μπάνιο, αν και είναι μία λύση αρκετά…
Ερώτηση αναγνώστριας "Εχω μια διώροφη κατοικία και θέλω να τη χωρίσω σε δύο αυτόνομα διαμερίσματα. Τί θα γίνει όμως με το χώρο κάτω από την σκάλα; Πώς μπορώ να τον αξιοποιήσω με κάποιες διακοσμητικές παρεμβάσεις ή και κατασκευές, χωρίς να αποξηλώσω την σκάλα" Μαρίνα Η απάντησή μας: Μία σκάλα αποτελεί λειτουργικό και μορφολογικό στοιχείο ενός χώρου, ακόμη και…
Ερώτηση αναγνώστριας: "Θέλω να ανακαινίσω το σπίτι μου και να το κάνω πιο μοντέρνο και μίνιμαλ. Πως μπορώ να το κάνω, χωρίς να χαλάσω τα δάπεδα που είναι πιο κλασικά; Πως θα πρέπει να χωροθετήσω την τραπεζαρία και το καθιστικό; Τί χρώμα ντουλάπια να επιλέξω στην κουζίνα;" Οι συμβουλές μας: Η τραπεζαρία μπορεί να χωροθετηθεί μπροστά από την…
Ερώτηση αναγνώστριας: "Τί χρώματα να επιλέξω στο καθιστικό μου; Οι καναπέδες είναι κίτρινο-πορτοκαλί. Το έπιπλο της τηλεόρασης και το τραπεζάκι του καθιστικού καρυδί. Σε τί χρώμα να διαλέξω τη βιβλιοθήκη; Τί αποχρώσεις πρέπει να έχουν οι πίνακες στους τοίχους; Τί χρώμα πρέπει να έχει η κουρτίνα" Ρεβέκκα. Η απάντησή μας: Για τους τοίχους και την οροφή, προτείνουμε απαλά…
Ερώτηση αναγνώστη: "Η άμμος ή η μαρμαρόσκονη είναι η κατάλληλη πρώτη ύλη για εξωτερικούς σοβάδες. Ποιά είναι τα υπέρ και ποιά τα κατά;" Τηλέμαχος Η άποψή μας: Γενικά υπάρχουν επιχρίσματα δύο τύπων: Τα εργοστασιακά και Τα εργοταξιακά. Τα εργοστασιακά παρασκευάζονται στο εργοστάσιο και διακρίνονται σε: ‘ξηράς μορφής’, δηλαδή έχουν αναμεμειγμένα μόνο τα ξηρά συστατικά και απαιτείται η προσθήκη…
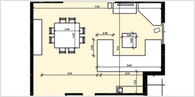
Ερώτηση αναγνώστη: Ο κ. Σπύρος ζήτησε τη συμβουλή μας, για τη διαρρύθμιση του καθιστικού και της τραπεζαρίας σε ενιαίο χώρο στο διαμέρισμα του. Μας έστειλε την κάτοψη του σπιτιού του καθώς και ένα link με έπιπλα προκειμένου να πάρουμε μια ιδέα για τις προτιμήσεις. Η απάντηση μας: Προτείνουμε δυο λύσεις διαρρύθμισης των επίπλων, οι οποίες διαφέρουν μεταξύ τους,…
Ερώτηση αναγνώστριας “Θέλω να αλλάξω το ξύλινο πάτωμα του σπιτιού μου, μου προτείνουν κυπαρίσσι εσείς τι λέτε? Ευχαριστώ” Νίκη Η άποψη μας Η ξυλεία που κυκλοφορεί στο εμπόριο χωρίζεται σε δύο κατηγορίες, τη μαλακή από κωνοφόρα δένδρα και τη σκληρή από πλατύφυλλα. Για επίστρωση δαπέδων επιλέγεται συνήθως η σκληρή ξυλεία εξαιτίας της αντοχής της. Το κυπαρίσσι, αν και…
Ερώτηση αναγνώστριας “Το σπίτι μου είναι 75 μ2 και έχει μπεζ σαγρέ πλακάκι μεσαίας διάστασης. Θέλουμε να προεκτείνουμε το σπίτι (σαν ενιαίο) προσθέτοντας 30 μ2 οπότε διαμορφώνεται νέο σαλόνι και γραφείο. Τι πλακάκια να βάλουμε στο νέο χώρο? Να βρούμε τα παλιά πλακάκια λίγο δύσκολο! Ή κάτι διαφορετικό? Όπως τύπου ξύλο ή κάτι άλλο? Γενικά θέλουμε το σπίτι…
Ερώτηση αναγνώστριας “Θέλω τη βοήθεια σας.....ανοίγοντας την πόρτα εισόδου βλέπουμε τοίχο (διάδρομος), ο οποίος συνδέεται ενιαία με σαλονοτραπεζαρία. Είναι βαμμένα σε βανίλια με νεοκλασικά έπιπλα σε καρυδί χρώμα. Στην είσοδο θέλω να βάλω μια λευκή κονσόλα. Τι χρώμα μπορώ να βάψω την είσοδο, ώστε να διαχωριστεί όμορφα από την σαλονοτραπεζαρία και να ταιριάζει με την κονσόλα? Σας ευχαριστώ…
Ερώτηση αναγνώστριας “Θα ήθελα κάποιες συμβουλές σχετικά με τις χρωματικές επιλογές του καθιστικού. Δεν ενδιαφέρομαι για κάποιο χρώμα στους τοίχους του σαλονιού. Θα ήθελα να με συμβουλέψετε ως προς την χρωματική επιλογή του καναπέ, των κουρτινών και του χαλιού. Σκέπτομαι να επιλέξω σαν χρώματα το άσπρο, γκρι και μωβ (σε ανοιχτή απόχρωση-λιλά), αλλά δεν ξέρω κατά πόσο μπορούν…
Ερώτηση αναγνώστριας: "Θα ήθελα να μου πείτε αν θα μπορούσα να κάνω κάποια κατασκευή δίπλα από το τζάκι στο χώρο του καθιστικού. Επίσης θα ήθελα τη συμβουλή σας για την τοποθέτηση των επίπλων καθώς και την πρότασή σας για νέο χρώμα στους τοίχους. Πρόκειται για χώρο 12τ.μ" Η απάντησή μας: Μπορείτε να εκμεταλλευτείτε τις εσοχές που υπάρχουν εκατέρωθεν…
Ερώτηση αναγνώστριας: “O χώρος καθιστικό - τραπεζαρία είναι μισόφτιαγμένος. Όταν ξεκίνησα να βάζω έπιπλα είχα στο μυαλό μου το μισό να γίνει καθιστό και στο άλλο μισό (που είναι άφτιαχτο) να βάλω τραπεζαρία αλλά στη πορεία κατάλαβα ότι δεν θα μου είναι χρήσιμη καθώς έχω μεγάλο τραπέζι στην κουζίνα. Τώρα δεν μπορώ να σκεφτώ πως μπορώ να διαμορφώσω…

Decobook.gr

© Copyright 2010 - DecoBook. All Rights Reserved